



TABLE OF CONTENTS
EXECUTIVE SUMMARY
4. Summary of Complaints, Notification of Summons and Prosecutions16
7. Conclusion and Recommendations18
List of Appendices
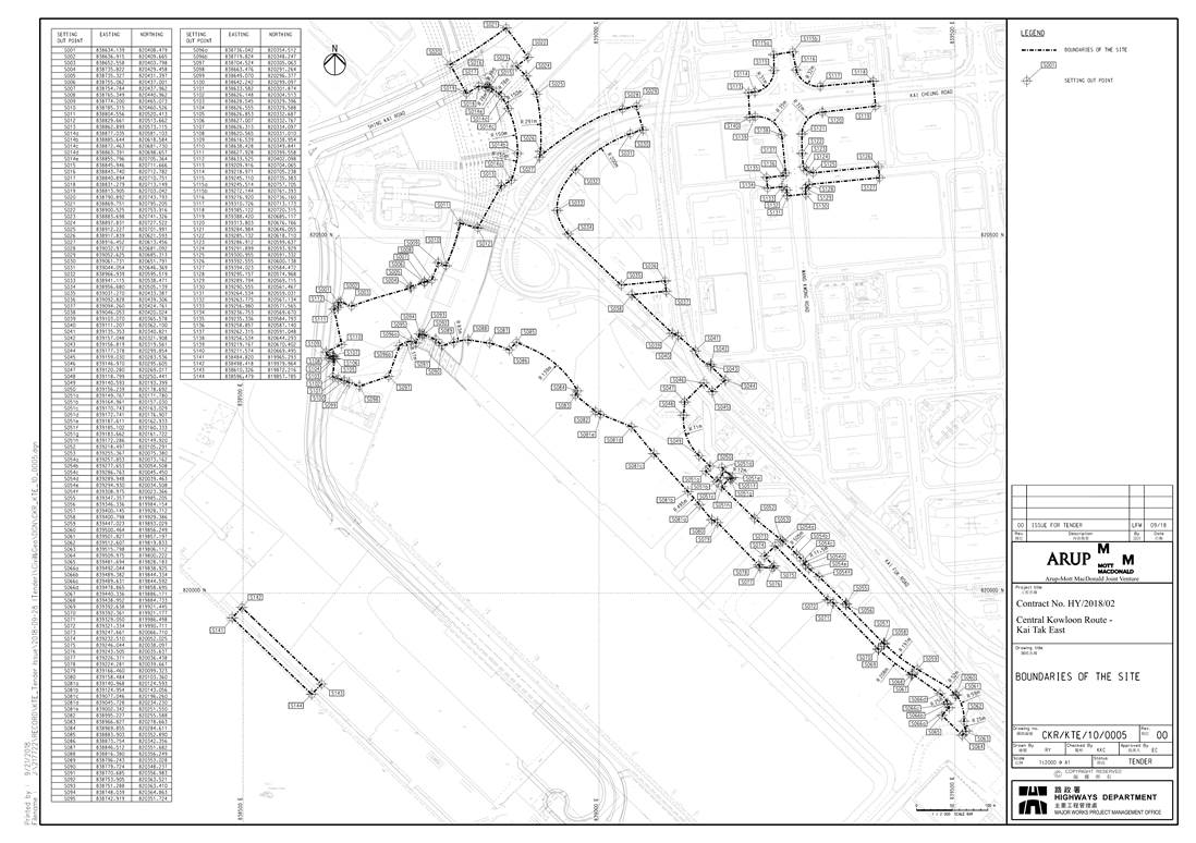
A. Alignment and Works Area for the Contract No. HY/2018/02
B. Construction Programme
C. Project Organization Chart
D. Dust Event-Action Plan (EAP)
E. Noise Event-Action Plan (EAP)
F. Environmental Mitigation Implementation Schedule (EMIS)
G. Monitoring Schedules of the Reporting Month
H. Calibration Certificate (Air Monitoring)
I. The Certification of Laboratory with HOKLAS Accredited Analytical Tests
J. Location Plan of Air Quality Monitoring Station
K. Monitoring Data (Air Monitoring)
L. Waste Flow Table
M. Statistics on Complaint, Notifications of Summons and Successful Prosecutions
N. Monitoring Schedule of the Coming Month
Executive Summary
A.1 Alchmex – Paul Y Joint Venture (“Contractor”) commenced the construction works of Highway Department (HyD) Central Kowloon Route Contract No. HY/2018/02 – Section of Kai Tak East (“The Project”) on 9 September 2019. This is the 14th monthly Environmental Monitoring and Audit (EM&A) report presenting the EM&A works carried out during the period from 1 Oct 2020 to 31 Oct 2020.
A.2 A summary of major Construction activities by Contractor for the Project during the reporting month is listed below.
|
Construction Activities undertaken |
|
· Bored Pile at Portion 1A, 2B, 3B & Kai Cheung Loop Road. · Foundation Work for the Foot Bridge at Kai Fuk Road. · Sheetpiling Works for Adit at Area 1D3. · Sheetpiling Works for Underpass at Portion 3B. · Construction of Marine Platform at Kai Tak Nallah · Reconstruction of Box Culvert at Portion 2B |
A.3
A summary of regular construction dust
monitoring activities in this reporting period is listed below:
Construction dust (24-hour TSP) monitoring
|
E-A1 |
5 times |
Construction dust (1-hour TSP) monitoring
|
E-A1 |
15 times |
A.4 Joint weekly site inspections were conducted by representatives of Environmental team (ET), Contractor and Engineer on 7, 14, 21 and 28 October 2020. Also, a joint site inspection with Independent Environmental Checker (IEC) was undertaken on 14 October 2020. Details of the audit findings and implementation status are presented in Section 5.
A.5 Bi-weekly inspection of the implementation of landscape and visual mitigation measures by ET was conducted on 14 and 28 October 2020. Details of the audit findings and implementation status are presented in Section 5.
A.6 Details of waste management are presented in Section 3.
A.7 No exceedance of the Action and Limit Levels of 24-hour TSP and 1-hour TSP monitoring were recorded during the reporting month.
A.8 No complaint or non-compliance was received in the reporting month.
A.9 No notification of summons and prosecution was received in the reporting period.
A.10 A summary of Construction Activities provided by Contractor in next reporting month is listed below:
|
Construction Activities to be undertaken |
|
· Bored Pile at Portion 1A, 2B, 3B & Kai Cheung Loop Road. · Foundation Work for the Foot Bridge at Kai Fuk Road. · Sheetpiling Works for Adit at Area 1D3. · Sheetpiling Works for Underpass at Portion 3B. · Construction of Marine Platform at Kai Tak Nallah · Reconstruction of Box Culvert at Portion 2B |
1. Basic Project Information
1.1. Central Kowloon Route (CKR) is a 4.7 km long dual 3-lane trunk road in Central Kowloon linking Yau Ma Tei Interchange in West Kowloon with the road network on Kai Tak Development and Kowloon Bay in East Kowloon.
1.2. The Central Kowloon Route – Design and Construction Environmental Impact Assessment Report (Register No.: AEIAR-171/2013) was approved with conditions by the Environmental Protection Department (EPD) on 11 July 2013. An Environmental Permit (EP 457/2013) was issued on 9 August 2013. Variations of EP (VEP) was subsequently applied for and the latest EP (EP-457/2013/C) was issued by EPD on 16 January 2017.
1.3. The construction of the CKR had been divided into different sections. This Contract No. HY/2018/02 – Section of Kai Tak East (KTE) covers part of the construction activities located at Kai Tak under the EP which includes:
Section of Kai Tak East
i. construction of an approximately 700m long dual 2-lane Central Kowloon Route mainline at Kai Tak, including at-grade roads and bridges;
ii. construction of Kai Tak Interchange, including bridges, underpass, and associated at-grade slip roads, connecting the Central Kowloon Route with the existing road network;
iii. construction of a footbridge, and demolition/backfill of an existing subway across Kai Fuk Road;
iv. realignment of existing Kai Fuk Road, Kai Cheung Road and Kai Cheung Road/Kai Fuk Road loop road;
v. reconstruction of an approximately 30m long existing multi-cell box culvert;
vi. construction of an approximately 130m long underground ventilation and E&M audit;
vii. construction of Ring Road Underpass, connecting Central Kowloon Route mainline and Central Kowloon Route Administration Building;
viii. junction improvement works at existing Wang Kwong Road/Kai Cheung Road and Wang Kwong Road/Lam Hing Street junctions;
ix. arrangement and implementation of cross boundary disposal of construction and demolition materials; and
x. associated roadworks, drainage, waterworks, landscaping works, geotechnical works, and electrical and mechanical works.
The alignment and works area for the Contract No. HY/2018/02 - are shown in Appendix A.
1.4. A summary of major construction activities provided by the Contractor in this reporting period is shown in Table 1.1. The construction programme is presented in Appendix B.
Table 1.1 Summary of Construction Activities provided by Contractor during this Reporting Month.
|
Construction Activities undertaken |
|
· Bored Pile at Portion 1A, 2B, 3B & Kai Cheung Loop Road. · Foundation Work for the Foot Bridge at Kai Fuk Road. · Sheetpiling Works for Adit at Area 1D3. · Sheetpiling Works for Underpass at Portion 3B. · Construction of Marine Platform at Kai Tak Nallah · Reconstruction of Box Culvert at Portion 2B |
1.5. The project organisational chart specifying management structure and contact details are shown in Appendix C.
Table 1.2 Summary of the Status of Valid Environmental Licence,
Notification, Permit and Documentations
|
Permit/ Licences/ Notification /Reference No. |
Valid Period |
Status |
Remark |
|
|
From |
To |
|||
|
Environmental Permit |
||||
|
EP-457/2013/C |
23 Apr 2019 |
End of Project |
Valid |
- |
|
Wastewater Discharge License |
||||
|
WT00035029-2019 |
17 Dec 2019 |
31 Dec 2024 |
Valid |
- |
|
Notification of Construction Works under the Air Pollution Control (Construction Dust) Regulation |
||||
|
445001 |
Apr 2019 |
Dec 2023 |
Notified |
- |
|
Chemical Waste Producer Registration |
||||
|
WPN5113-247-A2940-01 |
17 May 2019 |
End of Project |
Valid |
- |
|
Billing Account for Disposal of Construction Waste |
||||
|
7034073 |
15 Jun 2019 |
End of Project |
Valid |
- |
|
Construction Noise Permit |
||||
|
GW-RE0415-20 |
29-May-20 |
18-Nov-20 |
Superseded by GW-RE0894-20 |
General Work for Area A |
|
GW-RE0894-20 |
28-Oct-20 |
27-Apr-21 |
Valid |
|
|
GW-RE0321-20 |
6-May-20 |
28-Oct-20 |
Superseded by GW-RE0853-20 |
General Work for Area B and Site Office |
|
GW-RE0853-20 |
16-Oct-20 |
15-Apr-21 |
Valid |
|
|
GW-RE0551-20 |
4-Jul-20 |
3-Jan-21 |
Superseded by GW-RE0902-20 |
Kai Cheung U Turns |
|
GW-RE0902-20 |
29-Oct-20 |
23-Apr-21 |
Valid |
|
|
GW-RE0600-20 |
26-Jul-20 |
25-Nov-20 |
Superseded by GW-RE0850-20 |
Portion 2B |
|
GW-RE0850-20 |
13-Oct-20 |
12-Apr-21 |
Valid |
|
|
GW-RE0787-20 |
27-Sep-20 |
26-Nov-20 |
Valid |
BEM Office |
|
GW-RE0617-20 |
15-Aug-20 |
31-Oct-20 |
Superseded by GW-RE0790-20 |
Contra Flow at Kai Fuk Road |
|
GW-RE0790-20 |
30-Sep-20 |
31-Oct-20 |
Valid |
|
|
GW-RE0621-20 |
10-Aug-20 |
15-Oct-20 |
Superseded by GW-RE0752-20 |
Night work at Kai Fuk Road |
|
GW-RE0752-20 |
15-Sep-20 |
14-Dec-20 |
Valid |
|
|
GW-RE0741-20 |
12-Sep-20 |
3-Oct-20 |
Superseded by GW-RE0811-20 |
Resurfacing at Lam Hing Street |
|
GW-RE0811-20 |
1-Oct-20 |
5-Oct-20 |
Superseded by GW-RE0848-20 |
|
|
GW-RE0848-20 |
17-Oct-20 |
30-Nov-20 |
Superseded by GW-RE0887-20 |
|
|
GW-RE0887-20 |
24-Oct-20 |
30-Nov-20 |
Valid |
Resurfacing at Lam Hing Street |
2.1. Environmental permit (EP) conditions under the EIAO, submission status under the EP and implementation status of mitigation measures had been reviewed and implemented on schedule. The status of required submissions under the EP (EP-457/2013/C) as of the reporting period for the Project are summarised in Table 2.1
Table 2.1 Summary of Status of Required Submission for EP-457/2013/C for the Project
|
(EP-457/2013/C) |
Submission |
Submission date |
|
Notification of Commencement Date of Construction of the Project |
||
|
26 Jul 2019 |
||
|
26 Jul 2019 |
||
|
26 Jul 2019 |
||
|
21 Sep 2020 |
||
|
Condition 3.4 |
Monthly EM&A Report (September 2020) |
14 Oct 2020 |
2.2. Details of the major construction activities provided by the Contractor in this reporting period are shown in Table 2.2.
Table 2.2 Summary of Construction Activities provided by Contractor during the Reporting Month.
|
Construction Activities undertaken |
|
· Bored Pile at Portion 1A, 2B, 3B & Kai Cheung Loop Road. · Foundation Work for the Foot Bridge at Kai Fuk Road. · Sheetpiling Works for Adit at Area 1D3. · Sheetpiling Works for Underpass at Portion 3B. · Construction of Marine Platform at Kai Tak Nallah · Reconstruction of Box Culvert at Portion 2B |
2.3. The drawing showing the the project layout and the location of the monitoring station and environmental sensitive receivers are attached in Appendix A and Appendix J. Co-ordinates of the monitoring location is shown in below:
Table 2.3 Summary for the location of monitoring station
|
Location ID |
Latitude |
Longitude |
|
|
Hong Kong International Trade and Exhibition Centre |
E-A1 |
22.323912 |
114.203512 |
Air Quality
3.1.1. The impact monitoring had been carried out in accordance with section 5.8 of the approved EM&A Manual to determine the 1-hour and 24-hour total suspended particulates (TSP) levels at the monitoring locations in the reporting month.
3.1.2. The sampling frequency of at least once in every 6 days, shall be strictly observed at the monitoring stations for 24-hour TSP monitoring. For 1-hour TSP monitoring, the sampling frequency of at least 3 times in every 6 days should be undertaken when the highest dust impact occurs.
3.1.3. General meteorological conditions (wind speed, direction and precipitation) and notes regarding any significant adjacent dust producing sources had also been recorded throughout the impact monitoring period.
Air Quality
3.2.1. 1-hour TSP levels and 24-hour TSP had been measured with direct reading dust meter and High Volume Samplers respectively. It has been demonstrated its capability in achieving comparable results with high volume sampling method as set out in the Title 40 of the Code of Federal Regulations, Chapter 1 (Part 50).
3.2.2. The 1-hour TSP meter was calibrated by the manufacturer prior to purchasing. Zero response of the instrument was checked before and after each monitoring event. Operation of the 1-hour TSP meter followed manufacturer’s Operation and Service Manual. The 24-hour TSP meter was calibrated against firmware 80570-8100-V1.0.4, annually. Operation of the 24-hour TSP meter followed manufacturer’s Operation and Service Manual. Valid calibration certificate of dust monitoring equipment is attached in Appendix H.
3.2.3. A summary of the equipment that was deployed for the 24- hour averaged monitoring is shown in Table 3.1. The TSP monitoring was conducted as per the schedule presented in Appendix G.
3.2.4. The equipment used for 1-hour TSP and 24-hour TSP measurement and calibration are summarised in Table 3.1
Table 3.1 Construction Dust Monitoring Equipment
|
Monitoring Parameter |
Monitoring Equipment |
Serial Number |
Date of Calibration |
|
1-hour TSP |
LD-5R Digital Dust Indicator |
882106 |
22 Jul 2020 |
|
24-hour TSP |
TE-5170X High Volume Sampler |
1049 |
24 Sep 2020, 9 and 27 Oct 2020 |
|
TE-5025A Calibration Kit |
3465 |
23 Sep 2020 |
|
|
TE-5028A Calibration Kit |
3702 |
10 Oct 2019 |
3.3. Monitoring Methodology and QA/QC results
Air Quality
3.3.1. The 1-hour TSP monitor, portable dust meters (Sibata Digital Dust Indicator Model LD-5R) was used for the impact monitoring. The 1-hour TSP meters provides a real time 1-hour TSP measurement based on 90o light scattering. Three 1-hour TSP level were logged per every six days.
3.3.2. The 24-hour TSP monitor, High Volume Samplers (Tisch TE-5170x High Volume Air Sampler) were used for the impact monitoring. The 24-hour TSP monitoring consists of the following:
u The HVS was set at the monitoring location, with electricity supply connected and secured;
u HVS was calibrated before commencing the 1st measurement;
u The filter paper was weight and provided by HOKLAS lab (Acumen Laboratory and Testing Limited and ALS Technichem (HK) Pty Ltd) before and after the sampling. Certificate of HOKLAS accredited laboratory can be referred to Appendix I;
u The airflow over time during sampling process was recorded by the HVS.
3.3.3. HVSs were free-standing with no obstruction. The following criteria were considered in the installation of the HVS:
u Appropriate support to secure the samples against gusty wind needed to be provided the monitoring station;
u A minimum of 2m separation from walls, parapets and penthouses was required for rooftop samplers;
u No furnace or incinerator flues was nearby;
u Airflow around the sampler was unrestricted; and
u Permission could be obtained to set up the samplers and gain access to the monitoring station.
u Any wire fence and gate, to protect the sampler, should not cause any obstruction during monitoring
u A secured supply of electricity is needed to operate the samplers.
3.3.4. Preparation of Filter Papers
u Glass fiber filters were labelled and sufficient filters that were clean and without pinholes were selected;
u All filters were equilibrated in the conditioning environment for 24 hours before weighing. The conditioning environment temperature was around 25℃ and not varied by more than ±3℃; the relative humidity (RH)was 40%; and
u Acumen Laboratory and Testing Limited and ALS Technichem (HK) Pty Limited, as HOKLAS accredited laboratory, implemented comprehensive quality assurance and quality control programmes on the filters.
u The power supply was checked to ensure that the HVS was working properly;
u The filter holder and area surrounding the filter were cleaned;
u The filter holder was removed by loosening the foul bolts and a new filter, with stamped number upward, on a supporting screen was aligned carefully;
u The filter was properly aligned on the screen so that the gasket formed an airtight seal on the outer edges of the filter;
u The swing bolts were fastened to hold the filter holder down to the frame. The pressure applied should be sufficient to avoid air leakage at the edges;
u The shelter lid was closed and secured with an aluminum strip;
u The HVS was warmed- up for about 5 minutes to establish run- temperature conditions;
u A new flow rate record sheet was inserted into the flow recorder;
u The flow rates of the HVS was checked and adjusted to between 1.13-1.19 m3min-1, which was within the range specified in the EM&A Manual (i.e. 0.6- 1.7 m3min-1);
u The programmable timer was set for a sampling period of 24 hours ±hour, and the starting time, weather condition and filter number were recorded;
u The initial elapsed time was recorded;
u At the end of sampling, the sampled filter was removed carefully and folded in half so that only surfaces with collected particulate matter were in contact;
u The filter paper was placed in a clean plastic envelope and sealed; all monitoring information was recorded on a standard data sheet and
u The filters were sent to (Acumen Laboratory and Testing Ltd and ALS Technichem (HK) Pty Ltd) for analysis.
3.3.6. Maintenance and Calibration
u The HVS and their accessories were maintained in a good working condition. For example, motor brushes were replaced routinely and electrical wiring was checked to ensure a continuous power supply; and
u The flow rate of each HVS with mass flow controller was calibrated using an orifice calibrator, Initial calibrations of the dust monitoring equipment were conducted upon installation and prior to commissioning. Five-point calibration was carried out for HVS using TE-5025A Calibration Kit and TE-5028A Calibration KIT. HVS is calibrated in fortnightly Intervals. The calibration records for the HVS is given in Appendix H.
u The wind speed has been recorded from Hong Kong Observatory- King’s Park meteorological station, along with portable wind speed meter stand by as back up if malfunction occurred or data was not recorded from HKO
Air Quality
Table 3.2 Location of the Dust Monitoring Station
|
Air Quality Monitoring Station |
Dust Monitoring |
|
E-A1 |
Hong Kong International Trade and Exhibition Centre |
3.5. Monitoring date, time, frequency and duration
3.5.1. A summary of impact monitoring duration, sampling parameter and frequency is presented in Table 3.3.
Table 3.3: Summary of Impact Monitoring Programme
|
Impact Monitoring |
Duration |
Sampling Parameter |
Frequency |
|
Dust |
1-hour continuous measurement |
1-hour TSP |
3 times per six days |
|
Dust |
24-hour continuous sampling |
24-hour TSP |
Once per six days |
Air Quality
3.6.1. According to our field observations, the major dust source identified at the designated air quality monitoring station in the reporting month are summarised in Table 3.4
Table 3.4 Observation at Dust Monitoring Station
|
Monitoring Station |
Major Dust Source |
|
E-A1 |
Nearby traffic |
3.6.2. Air quality impact monitoring for the reporting month was carried out on 5, 10, 16, 22 and 28 October 2020 at E-A1.
3.6.3. The results for 1-hour TSP and 24-hour TSP are summarized in Table 3.5 and Table 3.6. The measurement data and details of influencing factors such as weather conditions and site observation are presented in Appendix K.
Table 3.5 Summary of 1-hour TSP Monitoring Results
|
Monitoring Location |
Range(μg/m3) |
Action Level(μg/m3) |
Limit Level(μg/m3) |
|
E-A1 |
27 - 59 |
279 |
500 |
Table 3.6 Summary of 24-hour TSP Monitoring Results
|
Monitoring Location |
Range(μg/m3) |
Action Level(μg/m3) |
Limit Level(μg/m3) |
|
E-A1 |
37 - 69 |
142 |
260 |
3.6.4. The waste generated from this Project includes inert C&D materials, and non-inert C&D materials. Non-inert C&D materials are made up of general refuse, vegetative wastes and recyclable wastes such as plastics and paper/cardboard packaging waste. Steel materials generated from the project are also grouped into non-inert C&D materials as the materials were not disposed of with other inert C&D materials. With reference to relevant handling records and trip tickets of this Project, the quantities of different types of waste generated in the reporting month are summarised in Table 3.7. Details of cumulative waste management data are presented as a waste flow table in Appendix L.
Table 3.7 Quantities of waste generated from the Project
|
Reporting period |
Quantity |
|||||
|
Inert C&D Materials (in ‘tonnes) |
Chemical Waste (in‘000 Kg) |
Non-inert C&D Materials |
||||
|
Others, e.g. General Refuse disposed at Landfill (in ‘tonnes) |
Recycled materials |
|||||
|
Paper/card board (in ‘000 Kg) |
Plastics (in ‘000 Kg) |
Metals (in ‘000 Kg) |
||||
|
Oct-2020 |
18,865.53 |
0.00 |
30.99 |
0.03 |
0.00 |
17.20 |
4. Summary of Complaints, Notification of Summons and Prosecutions
4.1. The Environmental Complaint Handling Procedure is shown in below Table 4.1:
Table 4.1 Environmental Complaint Handling Procedure
|
Complaint Received via Project Hotline |
Complaint Received via 1823 or from other government departments |
|||||
|
|
|
|
|
|||
|
Contractor notify ER, ET and IEC |
ER notify Contractor, ET and IEC |
|||||
|
|
|
|
|
|||
|
Contractor log complaint and date of receipt onto the complaint database. Contractor, ER and ET to conduct investigation of complaint |
||||||
|
|
|
|
|
|||
|
If complaint is considered not valid |
If complaint is found valid |
|||||
|
|
|
|
|
|||
|
ET or ER to reply the complainant if necessary |
Contractor to identify and implement remedial measures in consultation with the IEC, ET and ER. |
|||||
|
|
|
|
|
|||
|
|
|
The ER, ET and IEC to review the effectiveness of the Contractor's remedial measures and the updated situation; ET to undertake additional monitoring and audit to verify the situation if necessary, and oversee that circumstances leading to the complaint do not recur. ER to conduct further inspection as necessary. |
||||
|
|
|
|
|
|||
|
If the complaint is referred by the EPD, the Contractor to prepare interim report on the status of the complaint investigation and follow-up actions stipulated above, including the details of the remedial measures and additional monitoring identified or already taken, for submission to EPD within the time frame assigned by the EPD |
||||||
|
|
|
|
||||
|
The ET to record the details of the complaint, results of the investigation, subsequent actions taken to address the complaint and updated situation including the effectiveness of the remedial measures, supported by regular and additional monitoring results in the monthly EM&A reports |
||||||
4.2. Should non-compliance of the criteria occur, action in accordance with the Action Plan in Appendix D and Appendix E shall be carried out.
4.3. No exceedance of the Action and Limit Levels of 24-hour TSP and 1-hour TSP monitoring was recorded during the reporting month.
4.4. No complaint and non-compliance were received in the reporting month.
4.5. No notification of summons and successful prosecution was received in the reporting period.
4.6. Statistics on complaints, notifications of summons and successful prosecutions are summarized in Appendix M.
5.1. Site inspections were carried out on a weekly basis to monitor the implementation of proper environmental pollution control and mitigation measures under the Contract. In the reporting period, 4 site inspections were carried out by the representative of ET, Contractor and Engineer on 7, 14, 21 and 28 October 2020, along with bi-weekly inspection of the implementation of landscape and visual mitigation measures conducted on 14 and 28 October 2020.
5.2. One joint site inspection with IEC also undertaken on 14 October 2020. Minor deficiencies were observed during weekly site inspection. Key observations during the site inspections are summarized in Table 5.1.
Table 5.1 Site Observations
|
Date |
Environmental Observations |
Follow-up Status |
|
7 Oct 2020 |
1. Oil residue was found at Portion 2B. |
1. The oil residue was removed. |
|
14 Oct 2020 |
1. Opened cement bags should be covered by impervious sheet at Portion 1A. |
1. The cement bags were covered by impervious sheet. |
|
21 Oct 2020 |
1. Excavated soil should be covered by impervious sheet at Loop Rood. |
1. Excavated soil was covered by impervious sheet. |
|
28 Oct 2020 |
No major observation was found. |
NA |
5.3. The Contractor had rectified all observation identified during environmental site inspection in the reporting period.
5.4. According to the EIA Study Report, Environmental Permit, contract documents and EM&A Manual, the mitigation measures detailed in the documents had been implemented as much as practical during the reporting period. An updated Implementation Status of Environmental Mitigation Measures (EMIS) is provided in Appendix F.
6.1. The construction activities provided by Contractor in the next reporting month are:
l Bored Pile at Portion 1A, 2B, 3B & Kai Cheung Loop Road.
l Foundation Work for the Foot Bridge at Kai Fuk Road.
l Sheetpiling Works for Adit at Area 1D3.
l Sheetpiling Works for Underpass at Portion 3B.
l Construction of Marine Platform at Kai Tak Nallah
l Reconstruction of Box Culvert at Portion 2B
6.2. Potential environmental impacts arising from the above construction activities are mainly associated with dust and waste management.
6.3. The tentative schedule of 1-hour TSP and 24-hour TSP monitoring in the next reporting period is presented in Appendix N.
6.4. The construction programme for the Project for the next reporting month is presented in Appendix B.
7. Conclusion and Recommendations
7.1. This 14th monthly EM&A Report presents the EM&A works undertaken during the period from 1 Oct 2020 to 31 Oct 2020 in accordance with the EM&A Manual and the requirement under EP- 457/2013/C.
7.2. Air quality (including 1-hour TSP and 24-hour TSP) was carried out in the reporting period. No exceedance of the Action and Limit Level was recorded for air quality impact monitoring during the reporting month.
7.3. Weekly environmental site inspections by the representative of ET, Contractor and Engineer were conducted during the reporting period. Joint site inspection with IEC were carried out on 14 Oct 2020. Minor deficiency was observed during site inspection and was rectified within the specified deadlines. The environmental performance of the Project was therefore considered satisfactory.
7.4. No complaint and non-compliance situation were received in the reporting month.
7.5. No notification of summons or prosecution was received since commencement of the Contract.
7.6. The ET will keep track on the construction works to confirm compliance of environmental requirements and the proper implementation of all necessary mitigation measures.
Appendix A
Alignment and Works Area for the Contract No. HY/2018/02

Appendix B
Construction Programme



















Appendix C
Project Organization Chart
![]()

Appendix D
Dust Event-Action Plan (EAP)
|
EVENT |
ACTION |
|||
|
ET |
IEC |
ER |
CONTRACTOR |
|
|
ACTION LEVEL |
||||
|
1.Exceedance for one sample |
1. Identify source, investigate the causes of exceedance and propose remedial measures; 2. Inform IEC and ER; 3. Repeat measurement to confirm finding; 4. Increase monitoring frequency to daily. |
1. Check monitoring data submitted by ET; 2. Check Contractor’s working method. |
1. Notify Contractor. |
1. Rectify any unacceptable practice; 2. Amend working methods if appropriate. |
|
2.Exceedance for two or more consecutive samples |
1. Identify source; 2. Inform IEC and ER; 3. Advise the ER on the effectiveness of the proposed remedial measures; 4. Repeat measurements to confirm findings; 5. Increase monitoring frequency to daily; 6. Discuss with IEC and Contractor on remedial actions required; 7. If exceedance continues, arrange meeting with IEC and ER; 8. If exceedance stops, cease additional monitoring.
|
1. Check monitoring data submitted by ET; 2. Check Contractor’s working method; 3. Discuss with ET and Contractor on possible remedial measures; 4. Advise the ET on the effectiveness of the proposed remedial measures; 5. Supervise Implementation of remedial measures. |
1. Confirm receipt of notification of failure in writing; 2. Notify Contractor; 3. Ensure remedial measures properly implemented.
|
1. Submit proposals for remedial to ER within 3 working days of notification; 2. Implement the agreed proposals; 3. Amend proposal if appropriate. |
|
LIMIT LEVEL |
||||
|
1.Exceedance for one sample |
1. Identify source, investigate the causes of exceedance and propose remedial measures; 2. Inform ER, Contractor and EPD; 3. Repeat measurement to confirm finding; 4. Increase monitoring frequency to daily; 5. Assess effectiveness of Contractor’s remedial actions and keep IEC, EPD and ER informed of the results. |
1. Check monitoring data submitted by ET; 2. Check Contractor’s working method; 3. Discuss with ET and Contractor on possible remedial measures; 4. Advise the ER on the effectiveness of the proposed remedial measures; 5. Supervise implementation of remedial measures. |
1. Confirm receipt of notification of failure in writing; 2. Notify Contractor; 3. Ensure remedial measures properly implemented. |
1. Take immediate action to avoid further exceedance; 2. Submit proposals for remedial actions to IEC within 3 working days of notification; Implement the agreed proposals; 4. Amend proposal if appropriate. |
|
2.Exceedance for two or more consecutive samples |
1. Notify IEC, ER, Contractor and EPD; 2. Identify source; 3. Repeat measurement to confirm findings; 4. Increase monitoring frequency to daily; 5. Carry out analysis of Contractor’s working procedures to determine possible mitigation to be implemented; 6. Arrange meeting with IEC and ER to discuss the remedial actions to be taken; 7. Assess effectiveness of Contractor’s remedial actions and keep IEC, EPD and ER informed of the results; 8. If exceedance stops, cease additional monitoring. |
1. Discuss amongst ER, ET, and Contractor on the potential remedial actions; 2. Review Contractor’s remedial actions whenever necessary to assure their effectiveness and advise the ER accordingly; 3. Supervise the implementation of remedial measures. |
1. Confirm receipt of notification of failure in writing; 2. Notify Contractor; 3. In consultation with the IEC, agree with the Contractor on the remedial measures to be implemented; 4. Ensure remedial measures properly implemented; 5. If exceedance continues, consider what portion of the work is responsible and instruct the Contractor to stop that portion of work until the exceedance is abated. |
1. Take immediate action to avoid further exceedance; 2. Submit proposals for remedial actions to IEC within 3 working days of notification; 3. Implement the agreed proposals; 4. Resubmit proposals if problem still not under control; 5. Stop the relevant portion of works as determined by the ER until the exceedance is abated. |
Note:
ET – Environmental Team ER – Engineer’s Representative
IEC – Independent Environmental Checker
Appendix E
Noise Event-Action Plan (EAP)
|
EVENT |
ACTION |
|||
|
ET |
IEC |
ER |
CONTRACTOR |
|
|
Action Level |
1. Identify source, investigate the causes of exceedance and propose remedial measures; 2. Notify IEC and Contractor; 3. Report the results of investigation to the IEC, ER and Contractor; 4. Discuss with the Contractor and formulate remedial measures; 5. Increase monitoring frequency to check mitigation effectiveness. |
1.Review the analysed results submitted by the ET; 2. Review the proposed remedial measures by the Contractor and advise the ER accordingly; 3. Supervise the implementation of remedial measures. |
1. Confirm receipt of notification of failure in writing; 2. Notify Contractor; 3. Require Contractor to propose remedial measures for the analysed noise problem; 4. Ensure remedial measures are properly implemented |
1. Submit noise mitigation proposals to IEC; 2. Implement noise mitigation proposals. |
Note:
ET – Environmental Team
IEC – Independent Environmental Checker
ER – Engineer’s Representative
Appendix F
Environmental Mitigation Implementation Schedule (EMIS)
|
Environmental Mitigation Implementation Schedule – Contract No. HY/2018/02 (Kai Tak East) |
|
||||||||
|
|
|||||||||
|
EIA Ref. |
EM&A Log Ref. |
Recommended Mitigation Measures |
Objectives of the Recommended Measures & Main Concerns to address |
Implementation Agent |
Location / Timing |
Implementation Stage |
Requirements and/ or standards to be achieved |
Implementation Status |
|
|
Construction Dust Impact |
|||||||||
|
S4.3.10 |
D1 |
The contractor shall follow the procedures and requirements given in the Air Pollution Control (Construction Dust) Regulation |
Minimize dust impact at the nearby sensitive receivers |
Contractor |
All construction sites |
Construction stage |
· APCO · To control the dust impact To meet HKAQO and TM-EIA criteria |
· Implemented |
|
|
S4.3.10 |
D2 |
· Mitigation measures in form of regular watering under a good site practice should be adopted. Watering once per hour on exposed worksites and haul road should be conducted to achieve dust removal efficiencies of 91.7%. While the above watering frequencies are to be followed, the extent of watering may vary depending on actual site conditions but should be sufficient to maintain an equivalent intensity of no less than 1.3 L/m2 to achieve the dust removal efficiency. |
Minimize dust impact at the nearby sensitive receivers |
Contractor |
All construction sites |
Construction stage |
· APCO · To control the dust impact To meet HKAQO and TM-EIA criteria |
· Implemented |
|
|
S4.3.10 |
D3 |
· Proper watering at exposed spoil should be undertaken throughout
the construction phase; · Any excavated or stockpile of dusty material should be covered entirely by impervious sheeting or sprayed with water to maintain the entire surface wet and then removed or backfilled or reinstated where practicable within 24 hours of the excavation or unloading; · Any dusty materials remaining after a stockpile is removed should be wetted with water and cleared from the surface of roads; · A stockpile of dusty material should not be extended beyond the
pedestrian barriers, fencing or traffic cones; · The load of dusty materials on a vehicle leaving a construction site should be covered entirely by impervious sheeting to ensure that the dusty materials do not leak from the vehicle. · Where practicable, vehicle washing facilities with high pressure
water jet should be provided at every discernible or designated vehicle exit
point. The area where vehicle washing takes place and the road section
between the washing facilities and the exit point should be paved with
concrete, bituminous materials or hardcores; · When there are open excavation and reinstatement works, hoarding of not less than 2.4m high should be provided and properly maintained as far as practicable along the site boundary with provision for public crossing. Good site practice shall also be adopted by the Contractor to ensure the conditions of the hoardings are properly maintained throughout the construction period; · The portion of any road leading only to construction site that is within 30m of a vehicle entrance or exit should be kept clear of dusty materials; · Surfaces where any pneumatic or power-driven drilling, cutting, polishing or other mechanical breaking operation takes place should be sprayed with water or a dust suppression chemical continuously; · Any area that involves demolition activities should be sprayed with water or a dust suppression chemical immediately prior to, during and immediately after the activities so as to maintain the entire surface wet; · Any skip hoist for material transport should be totally enclosed by impervious sheeting; · Every stock of more than 20 bags of cement or dry-pulverised fuel ash (PFA) should be covered entirely by impervious sheeting or placed in an area sheltered on the top and the 3 sides; · Loading, unloading, transfer, handling or storage of bulk cement or dry PFA should be carried out in a totally enclosed system or facility, and any vent or exhaust should be fitted with an effective fabric filter or equivalent air pollution control system · Exposed earth should be properly treated by compaction, turfing, hydroseeding, vegetation planting or sealing with latex, vinyl, bitumen, shotcrete or other suitable surface stabilizer within six months after the last construction activity on the construction site or part of the construction site where the exposed earth lies. |
Minimize dust impact at the nearby sensitive receivers |
Contractor |
All construction sites |
Construction stage |
· APCO · To control the dust impact To meet HKAQO and TM-EIA criteria |
· Implemented and rectified after observation. |
|
|
S4.3.10 |
D6 |
Implement regular dust monitoring under EM&A programme during the construction stage. |
Monitoring of dust impact |
Contractor |
Selected rep. dust monitoring station |
Construction stage |
· TM-EIA |
· Implemented |
|
|
Construction Noise (Airborne) |
|||||||||
|
S5.4.1 |
N1 |
Implement the following good site practices: · Only well-maintained plant should be operated on-site and plant should be serviced regularly during the construction programme; · Machines and plant (such as trucks, cranes) that may be in intermittent use should be shut down between work periods or should be throttled down to a minimum; · Plant known to emit noise strongly in one direction, where possible, be orientated so that the noise is directed away from nearby NSRs; · Silencers or mufflers on construction equipment should be properly fitted and maintained during the construction works; · Mobile plant should be sited as far away from NSRs as possible and practicable; · Material stockpiles, mobile container site office and other structures should be effectively utilized, where practicable, to screen noise from on-site construction activities. |
Control construction airborne noise |
Contractor |
All construction sites |
Construction stage |
· Annex 5, TM-EIAO |
· Implemented |
|
|
S5.4.1 |
N2 |
Install temporary hoarding located on the site boundaries between noisy construction activities and NSRs. The conditions of hoardings shall be properly maintained throughout the construction period. |
Reduce the construction noise levels at low-level zone of NSRs through partial screening |
Contractor |
All construction sites |
Construction stage |
· Annex 5, TM-EIAO |
· Implemented |
|
|
S5.4.1 |
N3 |
Install movable noise barriers (typical design is wooden framed barrier with a small-cantilevered on a skid footing with 25mm thick internal sound absorptive lining), acoustic mat or full enclosure, screen the noisy plants including air compressors, generators and handheld breakers, etc. |
Sreen the noisy plant items to be used at all construction sites |
Contractor |
All construction sites where practicable |
Construction stage |
· Annex 5, TM-EIAO |
· Implemented |
|
|
S5.4.1 |
N4 |
Use ‘Quiet plant’ |
Reduce the noise levels of plant items |
Contractor |
All construction sites where practicable |
Construction stage |
· Annex 5, TM-EIAO |
· Implemented |
|
|
S5.4.1 |
N5 |
Loading/ unloading activities should be carried out inside the full enclosure of mucking out points. |
Reduce the noise levels of loading/ unloading activities |
Contractor |
Mucking out locations |
Construction stage |
· Annex 5, TM-EIAO |
· Implemented |
|
|
S5.4.1 |
N6 |
Sequencing operation of construction plants where practicable. |
Operate sequentially within the same work site to reduce the construction airborne noise |
Contractor |
All construction sites where practicable |
Construction stage |
· Annex 5, TM-EIAO |
· Implemented |
|
|
S5.4.1 |
N7 |
Implement a noise monitoring programme under EM&A programme. |
Monitor the construction noise levels at the selected representative locations |
Contractor |
Selected rep. noise monitoring station |
Construction stage |
· TM-EIAO |
· Implemented |
|
|
Water Quality (Construction Phase) |
|||||||||
|
S6.9.1.1 |
W1 |
In accordance with the Practice Note for Professional Persons on Construction Site Drainage, Environmental Protection Department, 1994 (ProPECC PN1/94), construction phase mitigation measures shall include the following:
Construction Runoff · At the start of site establishment, perimeter cut-off drains to direct off-site water around the site should be constructed with internal drainage works and erosion and sedimentation control facilities implemented. Channels (both temporary and permanent drainage pipes and culverts), earth bunds or sand bag barriers should be provided on site to direct stormwater to silt removal facilities. The design of the temporary on-site drainage system will be undertaken by the contractor prior to the commencement of construction; · The dikes or embankments for flood protection should be implemented around the boundaries of earthwork areas. Temporary ditches should be provided to facilitate the runoff discharge into an appropriate watercourse, through a silt/ sediment trap. The sediment/ silt traps should be incorporated in the permanent drainage channels to enhance deposition rates; · The design of efficient silt removal facilities should be based on the guidelines in Appendix A1 of ProPECC PN 1/94, which states that the retention time for silt/ sand traps should be 5 minutes under maximum flow conditions. Sizes may vary depending upon the flow rate, but for a flow rate of 0.1 m3/s a sedimentation basin of 30 m3 would be required and for a flow rate of 0.5 m3/s the basin would be 150 m3. The detailed design of the sand/ silt traps shall be undertaken by the contractor prior to the commencement of construction; · All exposed earth areas should be completed and vegetated as soon as possible after earthworks have been completed, or alternatively, within 14 days of the cessation of earthworks where practicable. Exposed slope surfaces should be covered by tarpaulin or other means; · The overall slope of the site should be kept to a minimum to reduce the erosive potential of surface water flows, and all traffic areas and access roads protected by coarse stone ballast. An additional advantage accruing from the use of crushed stone is the positive traction gained during prolonged periods of inclement weather and the reduction of surface sheet flows; · All drainage facilities and erosion and sediment control structures should be regularly inspected and maintained to ensure proper and efficient operation at all times and particularly following rainstorms. Deposited silt and grit should be removed regularly and disposed of by spreading evenly over stable, vegetated areas; · Measures should be taken to minimize the ingress of site drainage into excavations. If the excavation of trenches in wet periods is necessary, they should be dug and backfilled in short sections wherever practicable. Water pumped out from trenches or foundation excavations should be discharged into storm drains via silt removal facilities; · Open stockpiles of construction materials (for example, aggregates, sand and fill material) of more than 50m3 should be covered with tarpaulin or similar fabric during rainstorms. Measures should be taken to prevent the washing away of construction materials, soil, silt or debris into any drainage system; · Manholes should always be adequately covered and temporarily sealed so as to prevent silt, construction materials or debris being washed into the drainage system and storm runoff being directed into foul sewers; · Precautions be taken at any time of year when rainstorms are likely, actions to be taken when a rainstorm is imminent or forecasted, and actions to be taken during or after rainstorms are summarized in Appendix A2 of ProPECC PN 1/94. Particular attention should be paid to the control of silty surface runoff during storm events, especially for areas located near steep slopes; · All vehicles and plant should be cleaned before leaving a construction site to ensure no earth, mud, debris and the like is deposited by them on roads. An adequately designed and site wheel washing facilities should be provided at every construction site exit where practicable. Wash-water should have sand and silt settled out and removed at least on a weekly basis to ensure the continued efficiency of the process. The section of access road leading to, and exiting from, the wheel wash bay to the public road should be paved with sufficient backfall toward the wheel wash bay to prevent vehicle tracking of soil and silty water to public roads and drains; · Oil interceptors should be provided in the drainage system downstream of any oil/ fuel pollution sources. The oil interceptors should be emptied and cleaned regularly to prevent the release of oil and grease into the storm water drainage system after accidental spillage. A bypass should be provided for the oil interceptors to prevent flushing during heavy rain; · Construction solid waste, debris and rubbish on site should be collected, handled and disposed of properly to avoid water quality impacts; · All fuel tanks and storage areas should be provided with locks and sited on sealed areas, within bunds of a capacity equal to 110% of the storage capacity of the largest tank to prevent spilled fuel oils from reaching water sensitive receivers nearby; · Adopt best management practices; · All earth works should be conducted sequentially to limit the amount of construction runoff generated from exposed areas during the wet season (April to September) as far as practicable. |
To minimize water quality impact from the construction site runoff and general construction activities |
Contractor |
All construction sites where practicable |
Construction stage |
· Water Pollution Control Ordinance · ProPECC PN 1/94 · TM-EIAO · TM-DSS |
· Implemented |
|
|
S6.9.1.2 |
W2 |
Tunneling Works and Underground Works
· Cut-&-cover tunneling work should be conducted sequentially to limit the amount of construction runoff generated from exposed areas during the wet season (April to September) as far as practicable. · Uncontaminated discharge should pass through sedimentation tanks prior to off-site discharge; · The wastewater with a high concentration of SS should be treated (e.g. by sedimentation tanks with sufficient retention time) before discharge. Oil interceptors would also be required to remove the oil, lubricants and grease from the wastewater; · Direct discharge of the bentonite slurry (as a result of D-wall) is not allowed. It should be reconditioned and reused wherever practicable. Temporary storage locations (typically a properly closed warehouse) should be provided on site for any unused bentonite that needs to be transported away after all the related construction activities area completed. The requirements in ProPECC PN 1/94 should be adhered to in the handling and disposal of bentonite slurries. |
To minimize construction water quality impact from tunneling works |
Contractor |
All tunneling portion |
Construction stage |
· Water Pollution Control Ordinance · ProPECC PN 1/94 · TM-DSS · TM-EIAO |
· N/A |
|
|
S6.9.1.3 |
W3 |
Sewage Effluent
· Portable chemical toilets and sewage holding tanks are recommended for handling the construction sewage generated by the workforce. A licensed contractor should be employed to provide appropriate and adequate portable toilets and be responsible for appropriate disposal and maintenance. |
To minimize water quality from sewage effluent |
Contractor |
All construction sites where practicable |
Construction stage |
· Water Pollution Control Ordinance · TM-DSS |
· Implemented |
|
|
S6.9.1.5 |
W4 |
Groundwater from Potential Contaminated Area:
· No direct discharge of groundwater from contaminated areas should be adopted. · A discharge license under the WPCO through the Regional Office of EPD for groundwater discharge should be applied. Prior to the excavation works within these potentially contaminated areas, the groundwater quality should be reviewed during the process of discharge license application. The compliance to the Technical Memorandum on Standards for Effluents Discharged into Drainage on Sewerage Systems, Inland and Coastal Waters (TM-DSS) and the existence of prohibited substance should be confirmed. If the review results indicated that the groundwater to be generated from the excavation works would be contaminated, the contaminated groundwater should be either properly treated in compliance with the requirements of the TM-DSS or properly recharged into the ground. · If wastewater treatment is deployed, the wastewater treatment unit shall deploy suitable treatment process (e.g. oil interceptor / activated carbon) to reduce the pollution level to an acceptable standard and remove any prohibited substances (e.g. TPH) to undetectable range. All treated effluent from wastewater treatment plant shall meet the requirements as stated in TM-DSS and should be discharged into the foul sewers. · If groundwater recharging wells are deployed, recharging wells should be installed as appropriate for recharging the contaminated groundwater back into the ground. The recharging wells should be selected at places where the groundwater quality will not be affected by the recharge operation as indicated in the Section 2.3 of TM-DSS. The baseline groundwater quality shall be determined prior to the selection of the recharge wells, and submit a working plan (including the laboratory analytical results showing the quality of groundwater at the proposed recharge location(s) as well as the pollutant levels of groundwater to be recharged) to EPD for agreement. Pollution levels of groundwater to be recharged shall not be higher than pollutant levels of ambient groundwater at the recharge well. Prior to recharge, any prohibited substances such as TPH products should be removed as necessary by installing the petrol interceptor. |
To minimize groundwater quality impact from contaminated area |
Contractor |
Excavation areas where contamination is found |
Construction stage |
· Water Pollution Control Ordinance · TM-DSS · TM-EIAO |
· Implemented |
|
|
S6.9.1.6 |
W6 |
Accidental Spillage
In order to prevent accidental spillage of chemicals, the following is recommended: · All the tanks, containers, storage area should be bunded and the locations should be locked as far as possible from the sensitive watercourse and stormwater drains; · The Contractor should register as a chemical waste producer if chemical wastes would be generated. Storage of chemical waste arising from the construction activities should be stored with suitable labels and warnings. Disposal of chemical wastes should be conducted in compliance with the requirements as stated in the Waste Disposal (Chemical Waste) (General) Regulation. |
To minimize water quality impact from accidental spillage |
Contractor |
All construction site where practicable |
Construction stage |
· Water Pollution Control Ordinance · ProPECC PN 1/94 · TM-EIAO · TM-DSS |
· Implemented |
|
|
Waste Management (Construction Waste) |
|||||||||
|
S7.4.1 |
WM1 |
On-site sorting of C&D material
· Geological assessment should be carried out by competent persons on site during excavation to identify materials which are not suitable to use as aggregate in structural concrete (e.g. volcanic rock, Aplite dyke rock, etc.). Volcanic rock and Aplite dyke rock should be separated at the source sites as far as practicable and stored at designated stockpile area preventing them from delivering to crushing facilities. The crushing plant operator should also be reminded to set up measures to prevent unsuitable rock from ending up at concrete batching plants and be turned into concrete for structural use. Details regarding control measures at source site and crushing facilities should be submitted by the Contractor for the Engineer to review and agree. In addition, site records should also be kept for the types of rock materials excavated and the traceability of delivery will be ensured with the implementation of Trip Ticket System and enforced by site supervisory staff as stipulated under DEVB TC(W) No. 6/2010 for tracking of the correct delivery to the rock crushing facilities for processing into aggregates. Alternative disposal option for the reuse of volcanic rock and Aplite Dyke rock, etc. should be explored. |
Separation of unsuitable rock from ending up at concrete batching plants and be turned into concrete for structural use |
Contractor |
All construction sites |
Construction stage |
· DEVB (W) No. 6/2010 |
· N/A |
|
|
S7.5.1 |
WM2 |
Construction and Demolition Material · Maintain temporary stockpiles and reuse excavated fill material for backfilling and reinstatement; · Carry out on-site sorting; · Make provisions in the Contract documents to allow and promote the use of recycled aggregates where appropriate; · Adopt ‘selective demolition’ technique to demolish the existing structures and facilities with a view to recovering broken concrete effectively for recycling purpose, where possible; · Implement a trip-ticket system for each works contract to ensure that the disposal of C&D materials are properly documented and verified; and · Implement an enhanced Waste Management Plan similar to ETWBTC (Works) No. 19/2005 – “Environmental Management on Construction Sites” to encourage on-site sorting of C&D materials and to minimize their generation during the course of construction. |
Good site practice to minimize the waste generation and recycle the C&D materials as far as practicable so as to reduce the amount for final disposal |
Contractor |
All construction sites |
Construction stage |
· Land (Miscellaneous Provisions) Ordinance · Waste Disposal Ordinance · ETWB TCW No. 19/2005 |
· Implemented |
|
|
S7.5.1 |
WM3 |
C&D Waste · Standard formwork or pre-fabrication should be used as far as practicable in order to minimize the arising of C&D materials. The use of more durable formwork or plastic facing for the construction works should be considered. Use of wooden hoardings should not be used, as in other projects. Metal hoarding should be used to enhance the possibility of recycling. The purchasing of construction materials will be carefully planned in order to avoid over ordering and wastage; · The Contractor should recycle as much of the C&D materials as possible on-site. Public fill and C&D waste should be segregated and stored in different containers or skips to enhance reuse or recycling of materials and their proper disposal. Where practicable, concrete and masonry can be crushed and used as fill. Steel reinforcement bar can be used by scrap steel mills. Different areas of the sites should be considered for such segregation and storage. |
Good site practice to minimize the waste generation and recycle the C&D materials as far as practicable so as to reduce the amount for final disposal |
Contractor |
All construction sites |
Construction stage |
· Land (Miscellaneous Provisions) Ordinance · Waste Disposal Ordinance · ETWB TCW No. 19/2005 |
· Implemented |
|
|
S7.5.1 |
WM4 |
Excavated Contaminated Soils · Details of the mitigation measures on handling of the contaminated soil shall be referred to Section on Land Contamination below. |
The contaminated soil will be excavated for on-site reuse |
Contractor |
PBH4 |
Prior to commencement of construction works within the contaminated area |
· Practice Guide (PG) for Investigation and Remediation of Contaminated Land · GN/GM for land contamination |
· Implemented |
|
|
S7.5.1 |
WM5 |
Land-based Sediment · All construction plant and equipment shall be designed and maintained to minimize the risk of silt, sediments, contaminants or other pollutants being released into the water column or deposited in the locations other than designated location; · All vessels shall be sized such that adequate draft is maintained between vessels and the sea bed at all states of the tide to ensure that undue turbidity is not generated by turbulence from vessel movement or propeller wash; · Before moving the vessels which are used for transporting dredged material, excess material shall be cleaned from the decks and exposed fittings of vessels and the excess materials shall never be dumped into the sea except at the approved locations; · Adequate freeboard shall be maintained on barges to ensure that decks are not washed by wave action. · The Contractors shall monitor all vessels transporting material to ensure that no dumping outside the approved location takes place. The Contractor shall keep and produce logs and other records to demonstrate compliance and that journeys are consistent with designated locations and copies of such records shall be submitted to the engineers; · The Contractors shall comply with the conditions in the dumping licence. · All bottom dumping vessels (Hopper barges) shall be fitted with tight fittings seals to their bottom openings to prevent leakage of material; · The material shall be placed into the disposal pit by bottom dumping; · Contaminated marine mud shall be transported by spit barge of not less than 750m3 capacity and capable of rapid opening and discharge at the disposal site; · Discharge shall be undertaken rapidly and the hoppers shall be closed immediately. Material adhering to the sides of the hopper shall not be washed out of the hopper and the hopper shall remain closed until the barge returns to the disposal site. · For Type 3 special disposal treatment, sealing of contaminant with geosynthetic containment before dropping designated mud pit would be a possible arrangement. A geosynthetic containment method is a method whereby the sediments are sealed in geosynthetic containers and, the containers would be dropped into the designated contaminated mud pit where they would be covered by further mud disposal and later by the mud pit capping at the disposal site, thereby fulfilling the requirements for fully confined mud disposal. |
To control pollution due to marine sediment |
Contractor |
Along CKR alignment |
Construction stage |
· ETWB TCW No. 34/2002 |
· Implemented |
|
|
S7.5.1 |
WM6 |
Chemical Waste · Chemical waste that is produced, as defined by Schedule 1 of the Waste Disposal (Chemical Waste) (General) Regulation, should be handled in accordance with the Code of Practice on the Packaging, Labelling and Storage of Chemical Wastes; · Containers used for the storage of chemical wastes should be suitable for the substance they are holding, resistant to corrosion, maintained in a good condition, and securely closed, have a capacity of less than 450 L unless the specification has been approved by EPD, and display a label in English and Chinese in accordance with instructions prescribed in Schedule 2 of the regulation; · The storage area for chemical wastes should be clearly labelled and used solely for the storage of chemical waste, enclosed on at least 3 sides, have an impermeable floor and bunding of sufficient capacity to accommodate 110% of the volume of the largest container or 20% of the total volume of waste stored in that area, whichever is the greatest, have adequate ventilation, covered to prevent rainfall entering, and arranged so that incompatible materials are adequately separated; · Disposal of chemical waste should be via a licensed waste collector, be to a facility licensed to receive chemical waste, such as the Chemical Waste Treatment Centre which also offers a chemical waste collection service and can supply the necessary storage containers, or be to a reuser of the waste, under approval from EPD. |
Control the chemical waste and ensure proper storage, handling and disposal |
Contractor |
All construction sites |
Construction stage |
· Waste Disposal (Chemical Waste) (General) Regulation · Code of Practice on the Packaging, Labelling and Storage of Chemical Waste |
· Implemented and rectified after observation. |
|
|
S7.5.1 |
WM7 |
General Refuse · General refuse generated on-site should be stored in enclosed bins or compaction units separately from construction and chemical wastes; · A reputable waste collector should be employed by the Contractor to remove general refuse from the site, separately from construction and chemical wastes, on a daily basis to minimize odour, pest and litter impacts. Burning of refuse on construction sites is prohibited by law. · Aluminum cans are often recovered from the waste stream by individual collectors if they are segregated and made easily accessible. Separate labelled bins for their deposit should be provided if feasible; · Office wastes can be reduced through the recycling of paper if volumes are large enough to warrant collection. Participation in a local collection scheme should be considered by the Contractor. |
Minimize production of the general refuse and avoid odour, pest and litter impacts |
Contractor |
All construction sites |
Construction stage |
· Waste Disposal Ordinance |
· Implemented |
|
|
Land Contamination |
|
||||||||
|
S8.9 & Appendix 8.4 |
LC2 |
Excavation of the Contaminated Soil · Prior to commencement of the excavation works at the contamination zone, the zone should be clearly marked out on site and the surface levels recorded. Excavation of contaminated material should be undertaken using dedicated earth-moving plant. · The excavated contaminated soils would be stockpiled at designated area on site and covered by sheet to prevent dispersion of contamination during stockpiling. · The Contractor should pay attention to the selection of suitable groundwater lowering schemes and discharge points if the groundwater table is higher than the contaminated soils during excavation. The Contractor should also obtain a valid Water Pollution Control Ordinance (WPCO) discharge licence from EPD where applicable. |
The contaminated soil will be excavated for on-site reuse |
Contractor |
PBH4 |
Prior to commencement of construction works within the contaminated area |
· Practice Guide (PG) for Investigation and Remediation of Contaminated Land · Guidance Notes for Contaminated Land Assessment and Remediation · Guidance Manual for Use of Risk-Based Remediation Goals (RBRGs) for Contaminated Land Management |
· N/A |
|
|
S8.9 & Appendix 8.4 |
LC3 |
· Following completion of the excavation to the specified depth, at least one sample from the base of the excavation and four samples evenly distributed along the boundary of the excavation shall be taken for a closure assessment testing. The acceptance criterion is shown below:
· If the results of analysis below the RBRGs (Public Park), no further excavation will be required.
If the analysis indicates presence of contamination (i.e. noncompliance of the acceptance criteria), further excavation shall be carried out in 0.5m increment vertically and/or horizontally depending on the location(s) of the sample(s) which has exceeded the acceptance criteria. Further sampling shall also be conducted for compliance testing. The process of excavation, sampling and compliance testing should continue until all contaminated materials are removed and should be supervised by a Land Contamination Specialist. |
· N/A |
||||||
|
Appendix 8.4 |
LC4 |
A Remediation Report (RR) to demonstrate adequate clean-up shall be prepared and submitted to EPD for endorsement prior to the commencement of any construction/development works within the sites. No construction/development works shall be carried out prior to the endorsement of the RR by EPD. |
· N/A |
||||||
|
Hazard to Life |
|||||||||
|
H8 |
The driver and his assistant should be physically healthy, experienced and have good safe driving records. The driver should hold a proper driving licence for the approved transport truck. Dedicated training programme and regular road safety briefing sessions/ workshops should be provided to enhance their safe driving attitude and practice. Smoking should be strictly prohibited. |
To reduce the risk during explosives transport |
Contractor |
Works areas at which explosives would be used |
Construction stage |
- |
· N/A |
||
|
S9.18 |
H9 |
Emergency response plans in case of road accident should be prepared and implemented. The driver and his assistant should be familiar with the emergency procedures including evacuation, and proper communication/ fire-fighting equipment should be provided to the driver and his assistant. |
To reduce the risk during explosives transport |
Contractor |
Works areas at which explosives would be used |
Construction stage |
- |
· N/A |
|
|
Landscape & Visual |
|||||||||
|
S10.10.1 Table 10.11 |
LV3 |
Good Site Management · Large temporary stockpiles of excavated material shall be covered with unobtrusive sheeting to prevent dust and dirt spreading to adjacent landscape areas and vegetation, and to create a neat and tidy visual appearance. · Construction plant and building material shall be orderly and carefully stored in order to create a neat and tidy visual appearance. |
Minimize visual impact |
Contractor |
Within Project site |
Construction stage |
- |
· Implemented |
|
|
LV4 |
Screen Hoarding · Decorative screen hoarding should be erected to screen the public from the construction area. It should be designed to be compatible with the existing urban context. |
Minimize visual impact |
Contractor |
Within Project site |
Construction stage |
- |
· Implemented |
||
|
S10.10.1 Table 10.11 |
LV5 |
Lighting Control during Construction · All lighting in the construction site shall be carefully controlled to minimize light pollution and night-time glare to nearby residencies and GIC. The Contractor shall consider other security measures, which shall minimize the visual impacts. |
Minimize visual impact |
Contractor |
Within Project site |
Construction stage |
- |
· Implemented |
|
|
S10.10.1 Table 10.11 |
LV6 |
Erosion Control · The potential for soil erosion shall be reduced by minimizing the extent of vegetation disturbance on site and by providing a protective cover over newly exposed soil. |
Minimize landscape impact |
Contractor |
Within Project site |
Construction stage |
- |
· Implemented |
|
|
S10.10.1 Table 10.11 |
LV7 |
Tree Protection & Preservation · Carefully protected during construction. Tree protection measures will be detailed at the Tree Removal Application stage and plans submitted to the relevant Government Department for approval in due course in accordance with ETWB TC no. 3/2006. |
Minimize landscape and visual impact |
Contractor |
Within Project site |
Construction stage |
· ‘Guidelines for Tree Risk Management and Assessment Arrangement on an Area Basis and on a Tree Basis’, Greening, Landscape and Tree Management (GLTM) Section, DEVB · Latest recommended horticultural practices from GLTM Section, DEVB |
· Implemented |
|
|
S10.10.1 Table 10.11 |
LV8 |
Tree Transplantation · For trees unavoidably affected by the Project that have to be removed, where practical transplantation will be chosen as the top priority method of removal. If this is not possible or practical compensatory planting will be provided for trees unavoidably felled (See LV10). For trees unavoidably affected by the Project works that are transplanted, transplantation must be carried out in accordance with ETWB TCW 2/2004 and 3/2006. |
Minimize landscape and visual impact |
Contractor |
Within Project site and designated off-site locations |
Prior to Construction stage |
· ETWB TCW 3/2006 · Latest recommended horticultural practices from Greening, Landscape and Tree Management (GLTM) Section, DEVB · ETWB TCW 2/2004 |
· N/A |
|
|
S10.10.1 Table 10.11 |
LV9 |
Compensatory Planting · For trees unavoidably affected by the Project that have to be removed, where practical transportation will be chosen as the top priority method of removal but if this is not possible or practical compensatory planting will be provided for trees unavoidably felled. All felled trees shall be compensated for by planting trees to the satisfaction of relevant Government projects. Required numbers and locations of compensatory trees shall be determined and agreed separately with Government during the Tree Felling Application process under ETWBTC 3/2006. · Compensatory tree planting may be incorporated into public open spaces and along roadside amenity areas affected by the construction works and therefore be part of the bigger wider planting plans. Onsite compensation planting is preferred but if necessary, additional receptor sites outside the Works Area shall be agreed separately with Government during the Tree Felling Application process. |
Minimize visual impact and also enhance landscape |
Contractor |
Within Project site |
Construction stage |
· ETWB TCW 3/2006 · Latest recommended horticultural practices from Greening, Landscape and Tree Management (GLTM) Section, DEVB · ETWB TCW 2/2004 |
· N/A |
|
|
S10.10.1 Table 10.11 |
LV10 |
Screen Planting · Tall screen/buffer trees, shrubs and climbers should be planted, in so far as is possible, to soften and screen proposed structures such as roads and central strip, vertical edges and buildings and to enhance streetscape greening effect where appropriate. Indiscriminate use of trees for screening must be avoided and the principle of ‘right tree for the right place’ must be followed. This detail will be provided at the Detailed Design stage. This measure may additionally form part of the compensatory planting and will improve and create a pleasant pedestrian environment. |
Minimize visual impact and also enhance landscape. |
Contractor |
Within Project Site |
Construction Phase |
· Guidelines on Greening of Noise Barriers, issued April 2012, GLTMS, DevB · ETWB TCW 2/2004 |
· N/A |
|
|
S10.10.1 Table 10.11 |
LV12 |
Reinstatement · All works areas, excavated areas and disturbed areas for tunnel construction and temporary road diversion or any other proposed works shall be reinstated to former conditions or better, with reasonable landscape treatment and to the satisfaction of the relevant Government departments. (Specific mitigation for disturbance to public open space is detailed separately under LV14) |
Minimize landscape impact |
Contractor |
Within Project Site |
Construction Phase |
· N/A |
· N/A |
|
|
Cultural Heritage Impact (Construction Phase) |
|||||||||
|
S11.4.4 |
CH1 |
The contractor should be alerted during the construction on the possibility of locating archaeological remains and as a precautionary measure, AMO shall be informed immediately in case of discovery of antiquities or supposed antiquities in the subject sites. |
To preserve any cultural heritage items which may be removed and damaged by the excavation |
Contractor |
During construction works for cut and cover tunnels |
Construction stage |
· AMOs requirements |
· Implemented |
|
|
EM&A Project |
|||||||||
|
S13.2 |
EM1 |
An Independent Environmental Checker needs to be employed as per the EM&A Manual |
Control EM&A Performance |
Highways Department |
All construction sites |
Construction stage |
· EIAO Guidance Note No. 4/2010 · TM-EIAO |
· Implemented |
|
|
S13.2-13.4 |
EM2 |
· An Environmental Team needs to be employed as per the EM&A Manual; · Prepare a systematic Environmental Management Plan to ensure effective implementation of the mitigation measures; · An environmental impact monitoring needs to be implemented by the Environmental Team to ensure all the requirements given in the EM&A Manual are fully complied with. |
Perform environmental monitoring & auditing |
Highways Department/ Contractor |
All construction sites |
Construction stage |
· EIAO Guidance Note No. 4/2010 · TM-EIAO |
· Implemented |
|
Appendix G
Monitoring Schedule of the Reporting Month

Appendix H
Calibration Certificates
(Air Monitoring)






Appendix I
The Certification of
Laboratory with HOKLAS Accredited Analytical Tests

Appendix J
Location Plan of Air Quality Monitoring Station

Appendix K
Monitoring Data (Air Monitoring)
Location: |
Hong Kong International Trade and Exhibition Centre (E-A1) |
|
Monitoring date: |
5, 10, 16, 22 and 28 October 2020 |
|
Parameter: |
TSP 1-hour |
|
Other Factors: |
Nearby traffic |
|
Date |
1-hour TSP (μg/m3) |
||||
|
Weather |
Start Time |
1st Hour (μg/m3) |
2nd Hour (μg/m3) |
3rd Hour (μg/m3) |
|
|
05/10/2020 |
Fine |
9:36 |
27 |
38 |
45 |
|
10/10/2020 |
Sunny |
9:26 |
44 |
40 |
51 |
|
16/10/2020 |
Sunny |
9:20 |
46 |
59 |
55 |
|
22/10/2020 |
Sunny |
9:16 |
35 |
47 |
39 |
|
28/10/2020 |
Cloudy |
9:42 |
41 |
36 |
48 |
Figure 1: Graphical Illustration of Measured 1-hour TSP (μg/m3) Levels at E-A1

|
Location: |
Hong Kong International Trade and Exhibition Centre (E-A1) |
|
Monitoring date: |
5, 10, 16, 22 and 28 October 2020 |
|
Parameter: |
TSP 24-hour |
|
Other Factors: |
Nearby traffic
|
|
|
|

Figure 2: Graphical Illustration of Measured 24-hour TSP (μg/m3) Levels at E-A1

WIND DIRECTION DATA FOR 5, 6, 10, 11, 16, 17, 22, 23, 28 and 29 Oct 2020










WIND SPEED DATA FOR 5, 6, 10, 11, 16, 17, 22, 23, 28 and 29 Oct 2020










Appendix L
Waste Flow Table
Monthly Summary Waste Flow Table
Name of Department: Highways Department Contract No. / Works Order No.: __HY/2018/02__
Monthly Summary Waste Flow Table for Oct 2020
[to be submitted not later than the 15th day of each month following reporting month] (All quantities shall be rounded off to 2 decimal places.)
|
Month |
|
Actual Quantities of Inert Construction Waste Generated Monthly |
|||||||||||||
|
(a)=(b)+(c)+(d)+(e)+ (f)+ (g)+ (h)+ (i)+ (j)+ (k) Total Quantity Generated |
(b) Hard Rock and Large Broken Concrete |
(c) Reused in the Contract |
(d) Reused in other Projects |
(e) Disposed of as Public Fill |
(f) Imported Fill |
||||||||||
|
(in ‘tonnes) |
(in ‘tonnes) |
(in ‘tonnes) |
(in ‘tonnes) |
(in ‘tonnes) |
(in ‘tonnes) |
||||||||||
|
Jan-20 |
3,242.73 |
0.00 |
0.00 |
0.00 |
3,208.12 |
0.00 |
|||||||||
|
Feb-20 |
4,251.78 |
0.00 |
0.00 |
0.00 |
4,218.94 |
0.00 |
|||||||||
|
Mar-20 |
5,312.07 |
0.00 |
140.00 |
0.00 |
5,155.25 |
0.00 |
|||||||||
|
Apr-20 |
5,249.68 |
0.00 |
0.00 |
0.00 |
5,234.88 |
0.00 |
|||||||||
|
May-20 |
4,693.57 |
0.00 |
0.00 |
0.00 |
4,664.85 |
0.00 |
|||||||||
|
Jun-20 |
16,196.73 |
0.00 |
0.00 |
8,228.00
|
7,931.83 |
0.00 |
|||||||||
|
Sub-total |
38,946.56
|
0.00 |
140.00 |
8,228.00 |
30,413.87 |
0.00 |
|||||||||
|
Jul-20 |
11,703.35
|
0.00 |
0.00 |
2,276.00 0 |
9,389.95
|
0.00 |
|||||||||
|
Aug-20 |
11,355.38 |
0.00 |
0.00 |
0.00 |
11,316.50 |
0.00 |
|||||||||
|
Sep-20 |
22,584.23 |
0.00 |
0.00 |
7,341.58 |
14,692.32 |
496.00 |
|||||||||
|
Oct-20 |
18,913.75 |
0.00 |
0.00 |
8,652.11 |
10,213.42 |
0.00 |
|||||||||
|
Nov-20 |
0.00 |
0.00 |
0.00 |
0.00 |
0.00 |
0.00 |
|||||||||
|
Dec-20 |
0.00 |
0.00 |
0.00 |
0.00 |
0.00 |
0.00 |
|||||||||
|
Total |
103,510.73
|
0.00 |
140.00 |
26,497.69 |
76,075.06 |
496.00 |
|||||||||
|
2019 |
7,473.53
|
190.0 |
140.00 |
0.00 |
6,643.48 |
0.00 |
|||||||||
|
Accumulated Total |
110,984.26 |
190.0 |
280.00 |
26,497.69 |
82,718.54 |
496.00 |
|||||||||
|
|
|
|
|
|
|
|
|
|
||||||
|
Month |
Actual Quantities of Non-inert Construction Waste Generated Monthly |
||||||||
|
(g) Metals |
(h) Paper/ cardboard packaging |
(i) Plastics |
(j) Chemical Waste |
(k) Others, e.g. General Refuse disposed at Landfill |
|||||
|
(in ‘000kg) |
(in ‘000kg) |
(in ‘000kg) |
(in ‘000kg) |
(in ‘tonnes) |
|||||
|
generated |
recycled |
generated |
recycled |
generated |
recycled |
generated |
recycled |
generated |
|
|
Jan-20 |
0.00 |
0.00 |
0.00 |
0.00 |
0.00 |
0.00 |
0.00 |
0.00 |
34.61 |
|
Feb-20 |
11.94
|
11.94
|
0.55 |
0.55 |
0.00 |
0.00 |
0.00 |
0.00 |
20.35 |
|
Mar-20 |
0.00 |
0.00 |
0.00 |
0.00 |
0.00 |
0.00 |
0.00 |
0.00 |
16.82 |
|
Apr-20 |
0.00 |
0.00 |
0.15 |
0.15 |
0.00 |
0.00 |
0.00 |
0.00 |
14.65 |
|
May-20 |
0.00 |
0.00 |
0.00 |
0.00 |
0.00 |
0.00 |
0.00 |
0.00 |
28.72 |
|
Jun-20 |
0.02 |
0.02 |
0.26 |
0.26 |
0.00 |
0.00 |
0.00 |
0.00 |
36.62 |
|
Sub-total |
11.96 |
11.96 |
0.96 |
0.96 |
0.00 |
0.00 |
0.00 |
0.00 |
151.77 |
|
Jul-20 |
0.00 |
0.00 |
0.05 |
0.05 |
0.00 |
0.00 |
0.00 |
0.00 |
37.35 37.35
|
|
Aug-20 |
0.00 |
0.00 |
0.10 |
0.10 |
0.00 |
0.00 |
0.00 |
0.00 |
38.78 |
|
Sep-20 |
7.48 |
7.48 |
0.15 |
0.15 |
0.00 |
0.00 |
0.00 |
0.00 |
54.16 |
|
Oct-20 |
17.20 |
17.20 |
0.03 |
0.03 |
0.00 |
0.00 |
0.00 |
0.00 |
30.99 |
|
Nov-20 |
0.00 |
0.00 |
0.00 |
0.00 |
0.00 |
0.00 |
0.00 |
0.00 |
0.00 |
|
Dec-20 |
0.00 |
0.00 |
0.00 |
0.00 |
0.00 |
0.00 |
0.00 |
0.00 |
0.00 |
|
Total |
36.64 |
36.64 |
1.29 |
1.29 |
0.00 |
0.00 |
0.00 |
0.00 |
313.05 |
|
2019 |
0.00 |
0.00 |
0.05 |
0.05 |
0.00 |
0.00 |
0.00 |
0.00 |
500.00 |
|
Accumulated Total |
36.63 |
36.63 |
1.34 |
1.34 |
0.00 |
0.00 |
0.00 |
0.00 |
813.05 |
Appendix M
Statistics on Complaint, Notifications of Summons and Successful Prosecutions
Statistical Summary of Exceedances
|
Air Quality |
|||
|
Location |
Action Level |
Limit Level |
Total |
|
E-A1 |
0 |
0 |
0 |
Statistical Summary of Environmental Complaints
|
Reporting Period |
Environmental Complaint Statistics |
||
|
Frequency |
Cumulative |
Complaint Nature |
|
|
1 Oct 2020- 31 Oct 2020 |
0 |
1 |
N/A |
Statistical Summary of Environmental Non-compliance
|
Reporting Period |
Environmental Non-compliance Statistics |
||
|
Frequency |
Cumulative |
Details |
|
|
1 Oct 2020- 31 Oct 2020 |
0 |
0 |
N/A |
Statistical Summary of Environmental Summons
|
Reporting Period |
Environmental Summons Statistics |
||
|
Frequency |
Cumulative |
Details |
|
|
1 Oct 2020- 31 Oct 2020 |
0 |
0 |
N/A |
Statistical Summary of Environmental Prosecution
|
Reporting Period |
Environmental Prosecution Statistics |
||
|
Frequency |
Cumulative |
Details |
|
|
1 Oct 2020- 31 Oct 2020 |
0 |
0 |
N/A |
Appendix N
Monitoring Schedule of the Coming Month




Table of contents
Environmental Monitoring Works
Complaint Handling, Prosecution and Public Engagement
Construction Activities undertaken during the Reporting Month
Statues of Environmental Licensing and Permitting.
Implementation Status of Environmental Mitigation Measures
Implementation Status of Event and Action Plans
Summary of Complaint, Warning, Notification of any Summons and Successful Prosecution
Status of Required Submission under Environmental Permit
8 Conclusions and recommendations
lIST OF TABLES
Table I Summary of Complaint/Summons/Prosecution in the Reporting Month
Table 1.1 Key Project Contacts
Table 1.2 Summary of Environmental Licensing and Permit Status
Table 4.1 Quantities of Waste Generated from the Project
Table 6.1 Observations and Recommendations of Site Inspections
Table 6.2 Status of Required Submission under Environmental Permit
lIST OF FIGUREs
Figure 1.1 Site Layout Plan
Figure 1.2 Project Organisation for Environmental Monitoring and Audit
lIST OF APPENDIces
Appendix A Construction Programme
Appendix B Summary of Waste Generation and Disposal Records
Appendix C Environmental Mitigation Implementation Schedule (EMIS)
Appendix D Summaries of Environmental Complaint, Warning, Summon and Notification of Successful Prosecution
1. This is the 1st Monthly Environmental Monitoring and Audit (EM&A) Report prepared by the Environmental Team (ET), Cinotech Consultants Ltd., for Contract No. HY/2019/13 “Central Kowloon Route – Buildings, Electrical and Mechanical Works”. This report summarized the monitoring results and audit findings of the EM&A programme under the issued EP No. EP-457/2013/C and in accordance with the EM&A programme in Kai Tak East Area during the reporting period from 12th October 2020 – 31st October 2020.
2. The major site activities undertaken in Kai Tak East Area in the reporting month included:
· Pre-drilling works;
· Hoarding installation; and
· Site open-up breaking works.
3. Environmental monitoring for the Project was performed in accordance with the EM&A Manual and the monitoring results were checked and reviewed. Joint weekly site inspections with the representative of ET, Engineer Representative and the Contractor were conducted on 16, 20 & 27 October 2020, whereas joint site inspection with the representative of IEC was conducted on 20 October 2020. The implementation of the environmental mitigation measures, Event Action Plans and environmental complaint handling procedures were also checked.
4. A summary of the non-compliance (exceedance) during the reporting month (October 2020) and the investigation results and/or follow-up actions is provided below:
Air Quality Monitoring
· No Action/Limit Level exceedance for 1-hour TSP was recorded.
· No Action/Limit Level exceedance for 24-hour TSP was recorded.
Landscape and Visual Monitoring
· No non-conformity for landscape and visual was recorded.
5. Summary of complaint/summons/prosecution in the reporting month is tabulated in Table I.
|
Event |
Event Details |
Follow-up/ Remedial Actions |
Status/ Remarks |
|
|
Number |
Brief Description |
|||
|
Complaints Received |
0 |
- |
- |
- |
|
Notification of Summons and Prosecutions Received |
0 |
- |
- |
- |
6. The impact air quality monitoring in Kai Tak East Area is currently covered under the Contract No. HY/2018/02. As to fulfil the monitoring requirement from the EM&A Manual for Contract No. HY/2019/13, the monitoring results could be referred to the relevant sections under the Contract No. HY/2018/02.
7. The key works or activities will be anticipated in the next reporting period are as follows:
· Pre-drilling works;
· Foundation piling; and
· Excavation for drainage works.
1.2 The Environmental Impact Assessment Report for Central Kowloon Route – Design and Construction (Register No.: AEIAR-171/2013) was approved under the Environmental Impact Assessment Ordinance (EIAO) on 11 July 2013. An Environmental Permit (EP No.: EP- 457/2013) was issued on 9 August 2013. Variations of Environmental Permit (VEP) was subsequently applied and the latest EP (EP No. EP-457/2013/C) was issued by Environmental Protection Department (EPD) on 16 January 2017.
1.3 The construction of the CKR had been divided into different sections. This Contract No. HY/2019/13 – Central Kowloon Route – Buildings, Electrical and Mechanical Works (“The Project”) will include the architectural, civil and structural construction works of Yau Ma Tei Ventilation Building (YVB), Ho Man Tin Ventilation Building (HVB), Kai Tak Ventilation Building (KVB) and Central Kowloon Route Administration Building (ADB) for the CKR. The landscaping and electrical and mechanical (E&M) works within the building sites will be involved as well.
1.4 Cinotech Consultants Limited was assigned as the Environmental Team (ET) to undertake the EM&A works for the Project. The construction of this Contract was commenced on 12th October 2020.
1.5 This is the 1st Monthly EM&A Report which summarises the impact monitoring results and audit findings for the EM&A programme in Kai Tak East Area during the reporting period from 12th October 2020 – 31st October 2020. The Kai Tak East Area site layout plan for the Project is shown in Figure 1.1.
1.6 Different Parties with different levels of involvement in the project organization include:
Project Proponent – Highways Department (HyD)
Engineer Representative (ER) – Arup – Mott MacDonald Joint Venture (AMMJV)
Environmental Team (ET) – Cinotech Consultants Limited (Cinotech)
Independent Environmental Checker (IEC) – Environmental Resources Management - Hong Kong Limited (ERM)
Contractor – Gammon Construction Limited (GCL)
1.7 The key contacts of the Project are shown in Table 1.1.
|
Party |
Role |
Contact Person |
Phone No. |
|
AMMJV |
Engineer Representative |
Mr. Tommy Wong |
3551 9251 |
|
Cinotech |
Environmental Team |
Ms. Betty Choi |
2151 2072 |
|
ERM |
Independent Environmental Checker |
Ms. Mandy To |
2271 3313 |
|
GCL |
Contractor |
Mr. Roy Leung |
6468 7650 |
1.8 The Organizational Structure for Environmental Management is shown in Figure 1.2.
1.9 The construction programme is presented in Appendix A.
1.10 The major site activities undertaken in the reporting month included:
· Pre-drilling works;
· Hoarding installation; and
· Site open-up breaking works.
1.11 The EM&A programme requires air quality monitoring, landscape and visual monitoring and environmental site audit. The EM&A requirements for each parameter are described in the following sections, including:
Environmental requirements and mitigation measures, as recommended in the EM&A Manual under the EP.
1.13 All permits/licenses obtained for the Project are summarized in Table 1.2.
|
Permit / License No. |
Valid Period |
Status |
|
|
From |
To |
||
|
Environmental Permit (EP) |
|||
|
EP-457/2013/C |
16 Jan 2017 |
N/A |
Valid |
|
Notification of Construction Works under Air Pollution Control Ordinance (APCO) |
|||
|
457346 |
18 Jun 2020 |
End of Project |
Valid |
|
Billing Account for Construction Waste Disposal |
|||
|
7037679 |
26 Jun 2020 |
N/A |
Valid |
|
Registration of Chemical Waste Producer – Kai Tak |
|||
|
5211-286-G2347-54 |
13 Jul 2020 |
N/A |
Valid |
|
Construction Noise Permit - Kai Tak (Percussive Piling) |
|||
|
PP-RE0037-20 |
19 Sep 2020 |
18 Mar 2021 |
Valid |
|
Construction Noise Permit - Kai Tak BEM Office (Generator) |
|||
|
GW-RE0801-20 |
27 Sep 2020 |
26 Dec 2020 |
Valid |
2.2 No Action/Limit Level exceedance was recorded for all 1-hour TSP and 24-hour TSP monitoring in the reporting month.
2.3 Site audits were carried out on a weekly basis to monitor and audit the timely implementation of air quality mitigation measures within the site boundaries of this Project. The summary of site audits are shown in Table 6.1 of this report.
3.1 As no Noise Sensitive Receiver (NSR) is located within 300m from the boundary of Kai Tak East Area, no construction noise monitoring is required in Kai Tak East Area for this Project.
3.2 Site audits were carried out on a weekly basis to monitor and audit the timely implementation of construction noise mitigation measures within the site boundaries of this Project. The summary of site audits are shown in Table 6.1 of this report.
4.1 Waste generated from this Project includes inert construction and demolition (C&D) materials and non-inert C&D materials. Inert C&D waste includes soil, broken rock, broken concrete and building debris, while non-inert C&D materials are made up of C&D waste which cannot be reused or recycled and has to be disposed of at the designated landfill sites.
4.2 The quantities of different types of waste generated in the reporting month are summarised in Table 4.1. Details of the amount of wastes generated by the major site activities of this Project during the reporting month is shown in Appendix B.
|
Quantity |
|||||||
|
|
Inert C&D Materials |
Non-inert C&D Materials |
|||||
|
Reporting Period |
Total Quantity Generated (in '000m3) |
Disposed as Public Fill (in '000m3) |
Others, e.g. general refuse (in '000m3) |
Metals (in '000kg) |
Paper/cardboard Packaging (in '000kg) |
Plastics (in '000kg) |
Chemical waste (in '000kg) |
|
October 2020 |
3.346 |
3.346 |
0.0232 |
0 |
0 |
0 |
0 |
4.3 Site audits were carried out on a weekly basis to monitor and audit to ensure that proper storage, transportation and disposal practices of waste materials generated during construction activities, such as construction and demolition (C&D) materials and general refuse are being implemented. The summary of site audits are shown in Table 6.1 of this report. The implementation status of the waste/chemical management measures in the reporting period are summarized in Appendix C.
5.1 According to the EM&A Manual, site audits would be undertaken during the construction phase of the Project to check that the proposed landscape and visual mitigation measures are properly implemented and maintained as per their intended objectives. Site inspections of the implementation of landscape and visual mitigation measures would be undertaken at least once every two weeks during the construction period.
5.2 Bi-weekly inspection of the implementation of landscape and visual mitigation measures within the site boundaries of this Project was conducted on 16 and 27 October 2020. The implementation status of the landscape and visual mitigation measures in the reporting period are summarized in Appendix C. The summary of observations and recommendations made for landscape and visual mitigation measures during site audits are shown in Table 6.1 of this report.
5.3 No non-compliance of the landscape and visual impact was recorded in the reporting month.
6.1 Site audits were carried out on a weekly basis to monitor the timely implementation of proper environmental management practices and mitigation measures in the Project site.
6.2 Site audits were conducted on 16, 20 & 27 October 2020 in the reporting month. Joint site inspection with the representative of IEC was conducted on 20 October 2020. No non-compliance was observed during the site audit.
6.3 According to Environmental Permit, the approved EIA Report (Register No.: AEIAR-171/2013), and the EM&A Manual of the Project, the mitigation measures detailed in the documents are recommended to be implemented during the construction phase. An Environmental Mitigation Implementation Schedule (EMIS) is provided in Appendix C.
6.4 The ET weekly site inspections were carried out during the reporting month and the observations and follow-up actions in Kai Tak East Area are summarized in Table 6.1.
Table 6.1 Observations and Recommendations of Site Inspections
|
Parameters |
Date |
Observations |
Follow-up Actions |
|
Water Quality |
16 Oct 2020 |
No environmental deficiency was identified in the reporting period. |
N/A |
|
Air Quality |
27 Oct 2020 |
Water spraying should be provided to minimize dust generation at the site area of Kai Tak Ventilation Building Site. |
Water spraying had been provided at the site area of Kai Tak Ventilation Building Site during the audit session on 3 Nov 2020. |
|
Noise |
N/A |
No environmental deficiency was identified in the reporting period. |
N/A |
|
Waste / Chemical Management |
20 Oct 2020 |
Oil stains on the ground should be removed at Kai Tak Ventilation Building Site. |
The oil stains had been removed at Kai Tak Ventilation Building Site during the audit session on 27 Oct 2020. |
|
Landscape and Visual |
N/A |
No environmental deficiency was identified in the reporting period. |
N/A |
|
Permits /Licences |
N/A |
No environmental deficiency was identified in the reporting period. |
N/A |
6.5 The Event and Action Plans for air quality could be referred to Appendix D of the EM&A report in Contract No. HY/2018/02.
Air Quality Monitoring
· No Action/Limit Level exceedance for 1-hour TSP was recorded.
· No Action/Limit Level exceedance for 24-hour TSP was recorded.
Landscape and Visual Monitoring
· No non-conformity for landscape and visual was recorded.
6.6 No environmental complaints, warning, notifications of summons and successful prosecutions was received in the reporting month. The summary of environmental complaint, warning, summon and notification of successful prosecution for the Project is presented in Appendix D.
6.7 Status of required submission under EP-457/2013/C during the reporting period are summarized in Table 6.2.
Table 6.2 Status of Required Submission under Environmental Permit
|
EP Condition (EP-457/2013/C) |
Submission |
Submission Date |
|
Condition 1.12 |
Notification of Commencement Date of Construction of the Project |
9 September 2020 |
|
Condition 2.4 |
Management Organisation of the Main Construction Companies |
9 September 2020 |
|
Condition 2.5 |
Construction Programme and EP Submission Schedule |
9 September 2020 |
|
Condition 2.6 |
Design Drawing |
9 September 2020 |
|
Condition 2.8 |
Landscape Mitigation Plan |
9 September 2020 |
|
Condition 2.9 |
Construction Noise Mitigation Measure Plan (CNMMP) |
9 September 2020 |
7.1 Major site activities undertaken for the coming two months include:
§ Pre-drilling works;
§ Foundation piling; and
§ Excavation for drainage works.
7.2 Key environmental issues in the coming two months include:
Stockpile accumulation on-site;
Water spraying for dust generating activities and on haul road;
Wastewater and runoff discharge from site;
Coverage of open manholes to avoid dirty runoff to drainage system;
Noise from operation of the equipment, especially for excavation works and machinery onsite;
Accumulation of general refuse and construction waste on-site;
Proper storage of construction materials on-site; and
Storage of chemicals/fuel and chemical waste/waste oil on-site.
8.1 This is the 1st Monthly EM&A Report which presents the EM&A works undertaken in Kai Tak East Area during the reporting month from 12th October 2020 – 31st October 2020 in accordance with the EM&A Manual and the requirements under the EP.
Air Quality Monitoring
8.2 No Action/Limit Level exceedance was recorded for all 1-hour and 24-hour TSP monitoring in the reporting month.
Landscape and visual
8.3 No non-compliance was recorded in the reporting month.
Site Audit
8.4 3 ET joint weekly environmental site inspections were conducted in the reporting month. Joint weekly site inspections with the representative of ET, Engineer Representative and the Contractor were conducted on 16, 20 & 27 October 2020, whereas joint site inspection with the representative of IEC was conducted on 20 October 2020. All environmental deficiencies observed during site inspections were rectified by the Contractor.
Complaint, Notification of Summons and Successful Prosecution
8.5 No environmental complaints, notifications of summons and successful prosecutions were received in the reporting month.
Figure 1.1
Site Layout Plan

Figure 1.2
Project Organisation for Environmental Monitoring and Audit

Appendix A
Construction Programme

Appendix B
Summary of Waste Generation and Disposal Records

Appendix C
Environmental Mitigation Implementation Schedule (EMIS)
















Appendix D
Summaries of Environmental Complaint, Warning, Summon and Notification of Successful Prosecution
